店面

2021_C800_五期精誠商圈合併戶一樓店面家住家

2021_C800_五期精誠商圈合併戶一樓店面家住家

⭐️總價 : 1780萬
⭐️格局 : 2房(室)2廳2衛
  • C800_五期精誠商圈合併戶一樓店面家住家.png
  • S__88662025_0.jpg
  • S__88662020_0.jpg
  • S__88662021_0.jpg
  • S__88662023_0.jpg
  • S__88662024_0.jpg
詳細介紹





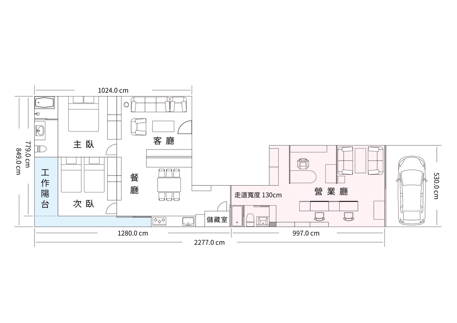
五期精誠商圈合併戶一樓店面家住家

 
1780萬元
格局 2房(室)2廳2衛
屋齡
權狀坪數 44.37坪
樓層 1F/7F
朝向  
社區  
地址 台中市西區精誠路

。物件特色

*室內空間約35坪格局方正好規劃,低公設,管理費僅900元
*門口前可停車,社區子母車,免追垃圾車
*可營登、可自住5.5米大面寬,可作多種規劃
*五期最成熟的地方、附近商圈環繞,食衣住行通通有

。房屋資料

現        況:住宅
型        態:電梯大樓
管  理  費:900元/月 
車        位:無車位

。坪數說明

總  坪  數:44.37坪
主  建  物:31.45坪
共用部分:9.42坪
附屬建物:3.5坪
車位坪數:0坪


聚利團隊
專業用心 服務積極

專營大台中西屯區、逢甲商圈、12期重劃區房屋買賣
不論是透天厝、電梯大樓、別墅、公寓等各種物件最齊全
最詳細的地產投資計畫、青年首購、換屋估價、房屋委託
提供您最透明的買房流程、最優質的成交價
--------------------------------------------
【聯 絡 資 訊】
聚利團隊_專業用心 服務積極  
➔地址:台中市西屯區黎明路三段186號
➔歡迎來電看屋:(04)2452-6767
➔線上看屋  加入好友

 

有巢氏房屋_12期逢甲聚利加盟店

聚利地產有限公司
經紀人張哲維(99)北市經證字第01621號